(Hrsg.) Alfred Werner Maurer - Texte + Pläne + Fotos: Alfred Werner Maurer
Bauten + Forschungen (Auswahl)

ZIP-Innovationszentrum Universität + Hochschulen Saarbrücken- Haupteingang

ZIP-Innovationszentrum Westseite

ZIP-Innovationszentrum Galerie 2tes Geschoss in den Seitenschiffen, Blick zur Halle
ZIP-Forschungszentrum - Instandsetzung der ehemaligen Drahtseilhalle und Einbau von 2-Geschosse in den Seitenschiffen
Forschungszentrum für die Universität und die Hochschulen Saarbrücken

Saarbrücker Schloss Südseite zum Garten


Schloss Saarbrücken und Historisches Museum Unter-und Erdgechoss

Schloss Saarbrücken und Historisches Museum 1tes- 2tes -und Dachgechoss
Schloss Saarbrücken Renovierung An- und Aufbau des Mittelpavillon
Nordseite zum Schlossplatz

Saarbrücker Schloss Museumsanbau entlang der Talstraße

Historisches Museum Saarbrücken Haupteingang

Historisches Museum Saarbrücken Haupteingang
Historisches Museum des Stadtverbandes Saarbrücken ( Anbau am Saarbrücker Schloss)



Stadtmitte Dudweiler mit Kaufhauspassage und Bürgerhaus, Saarbrücken

Bürgerhaus Dudweiler - Saarbrücken




Spielbank Saarbrücken Grundriss Erdgeschoss

Villen in Grenzach-Wylen - Schweizer Grenze, Garten Süd-West

Villen in Grenzach-Wylen - Schweizer Grenze, Garten Süd-West



Villa Basel nahe Schweizer Grenze Untergeschoss M 1:100

Villa Basel, Erdgeschoss M 1:100

Villa Basel, Erdgeschoss Haus 2

Villa Sarraz, Hanghaus Süd-West mit Blick zum Meer

Villa Sarraz, Hanghaus Ostseite mit Blick zum Meer und den Alpen


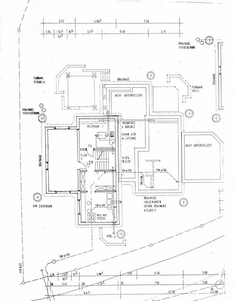
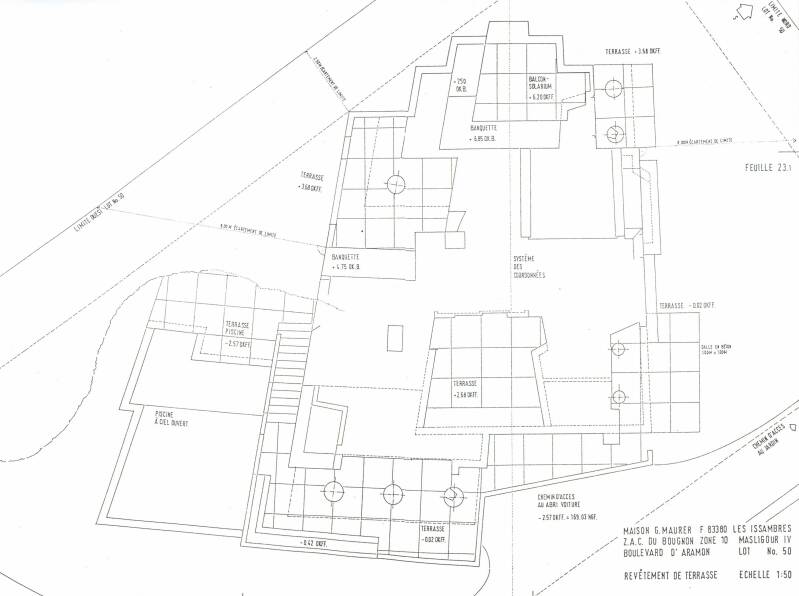
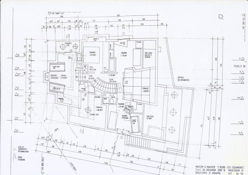
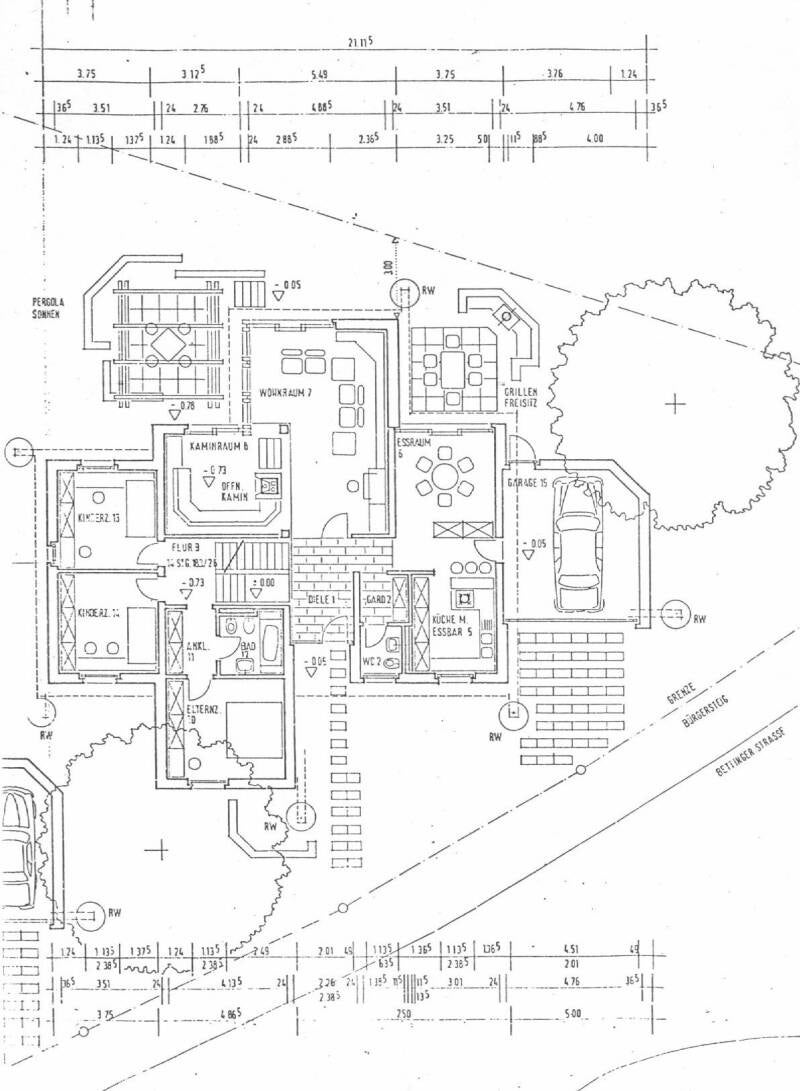
Villa Sarraz Les Issambres, Erdgeschoss mit Südterrasse M 1:50


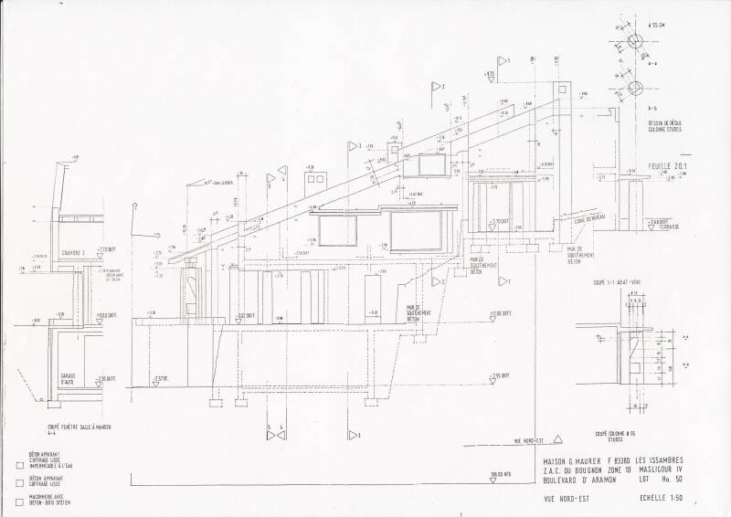
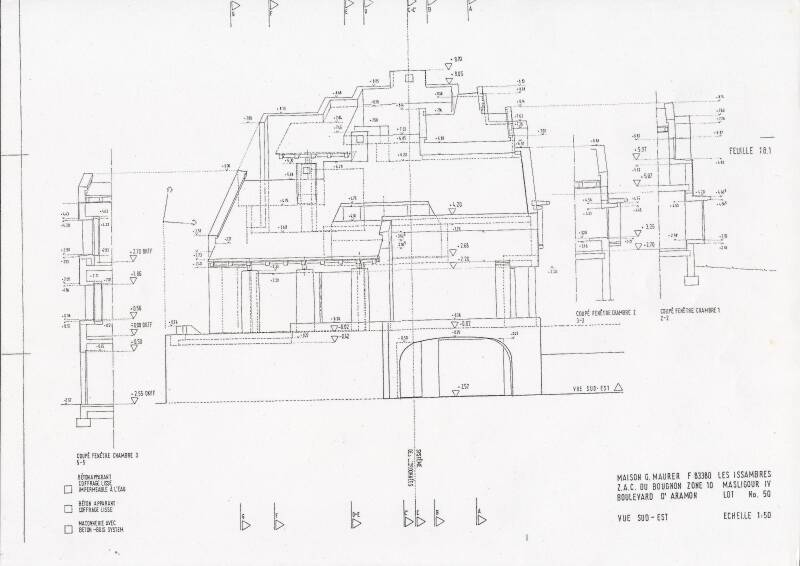
Villa Sarraz - Südseite mit Meerblick nach Süden, Westen und Osten M 1:50

Villa Sarraz - Süd-Westseite mit Meerblick nach Süden und Westen M 1:50

Villa Sarraz - Ostseite mit Meerblick und den Alpen M 1:50

Villa Sarraz Dachdraufsicht M 1:50
Spielbank Saarbrücken im Deutsch-Französischen Garten

Spielbank Saarbrücken Reppersberg- Preis

Dachverglasung, -terrasse und Gründach Zeichnung A. W. Maurer

Villa Winterberg, Eingangsgeschoss Zeichnung R. Olgiati

Villa Winterberg, Belle Etage Zeichnung R. Olgiati

Villa Winterberg, Gartengeschoss Zeichnung R. Olgiati

Villa Winterberg, Süd mit Terrassen Zeichnung R. Olgiati


Villa Winterberg, West Zeichnung R. Olgiati

Villa Winterberg, Nord-West Zeichnung R. Olgiati

Villa Winterberg, Isometrie , Zeichnung A. W. Maurer


Tall Munbaqa / Ekalte (Mumbaqat)
Eine 5000 Jahre alte Stadtanlage in Nordsyrien am östlichen Euphratufer über dem Steilhang des einstigen Flusstales gelegen. Ein bedeutender Fürstensitz (Stadtstaat) des 3. und 2. Jahrtausend v. Chr.


Rekonstruktion des Tempel, Steinbau 2 schicht 2/ 3


Tall Mumbaqat , Stadtmauer aus Lehmziegel passend zum v.g. Lehmziegeltor Schicht 4 / 5

Bestandsaufnahme Barockbausubstanz, Forschung und Rekonstruktionszeichnungen des Barockschloss Saarbrücken

Saarbrücker Schloss, Mittelbau in den verschiedenen Epochen

Rother Turm 12. Jh. Stauferzeit, beim Freilegen des Untergeschosses der Garage und der Technik

Tell Kāmid el-Lōz

Tell Kāmid el-Lōz
Koordinaten: 33° 37′ N, 35° 49′ O |
Der Tell Kāmid el-Lōz ist der Siedlungshügel (Tell) der altorientalischen Stadt Kumidi nördlich der neuzeitlichen Ortschaft Kāmid el-Lōz (auch: Kamed El-Laouz, Kamed El-Loz) im Libanon.
Der Tell liegt etwa 50 km südöstlich von Beirut am südlichen Ostrand der Biqa, der Hochebene zwischen Libanon-Gebirge und Anti-Libanon, 4 km östlich von Joub Jannine, dem Zentrum des West-Bekaa-Distrikts.
Er war ein wichtiger Handelsplatz zwischen dem Mittelmeer und Asien im 3. und 2. Jahrtausend v. Chr., und wurde in den Briefen des ägyptischen Pharao Amenophis IV. Echnaton fünfmal erwähnt. Die Stadt hatte eine doppelte Umwallung mit Tempeln, Palästen und Wohnhäusern

Tell Kāmid el-Lōz Ausgrabung im Palastbereich

Tell Kāmid el-Lōz Ausgrabung im Palastbereich
Die im Maßstab M 1:50 steingerechten Grabungsmauern im Palast wurden durch F. Bertemes, H.-J- Brück, C. Dittscheid, K. Grunwald G. Junghans, B. Kaiser, M. el Kawash, S. Kroll, Dipl.-Ing. Architekt A. Maurer, J.W. Meyer, E. Otto, A.Reichert, H.P. Schäfer, W. Schmoll gen. Eisenwerth, F-j. Schumacher, S. Wagner, P. Weinzierl, Dr. J.. Gancarski, Dr. I. Marfoe, Dr. G. Wilhelm sowie R. Jochmann aufgemessen und dokumentiert.

Tell Kāmid el-Lōz Ausgrabung im Palastbereich

Tell Kāmid el-Lōz Ausgrabung im Palastbereich
